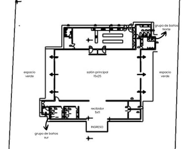
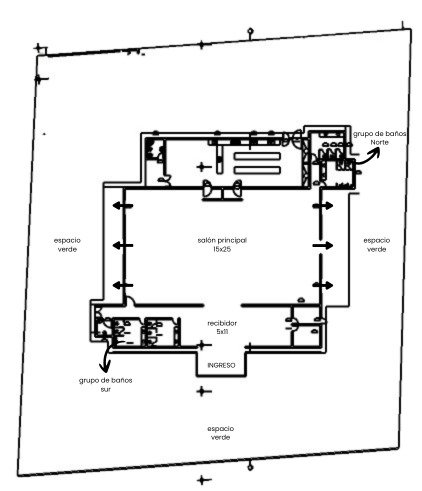
Salón Los Moros